Tiny Kate – 8 Meter

  • Wohnfläche 20 m2
  • Breite: 2,55 m
  • Höhe 3,70 m

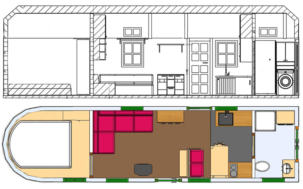
Tiny Kate – 10 Meter

  • Wohnfläche 25 m2
  • Breite: 2,55 m
  • Höhe 3,70 m

Tiny Kate – 13,2 Meter

  • Wohnfläche 32 m2
  • Breite: 2,55 m
  • Höhe 3,70 m