Was unterscheidet einen „Bungalow de Luxe EH55“ von einem „Bungalow Classic“?

- EH55-Effizienzhaus-Standard. Unsere Rolling Bungalows de Luxe bieten wir ausnahmslos im derzeit bestmöglichen Energieeffizienz-Standard an, der uns heute trotz relativ dünner Wände technisch möglich ist. Wie genau sich das auf Ihren Energieverbrauch auswirken kann, erkennen Sie an dem sogenannten Primär-Energiebedarf.
Siehe hier: Ökologie und Nachhaltigkeit - Hochwertige Materialien. Egal ob Lichtschalter, LED-Leuchtkörper, Wandverkleidungen oder massive Stahlgeländer auf der Terrasse – bei allen verbauten Materialien wurden ganz besonderer Wert auch Hochwertigkeit gelegt.
- Eine Holzfassade ist Standard. Bei der Wahl der Außenfassade sind wir kompromisslos und verbauen ausnahmslos eine edle Holzfassade.
- 20-22°-Satteldach. Die meisten Wohnsiedlungen werden baurechtlich über Bebauungspläne geregelt, die sehr
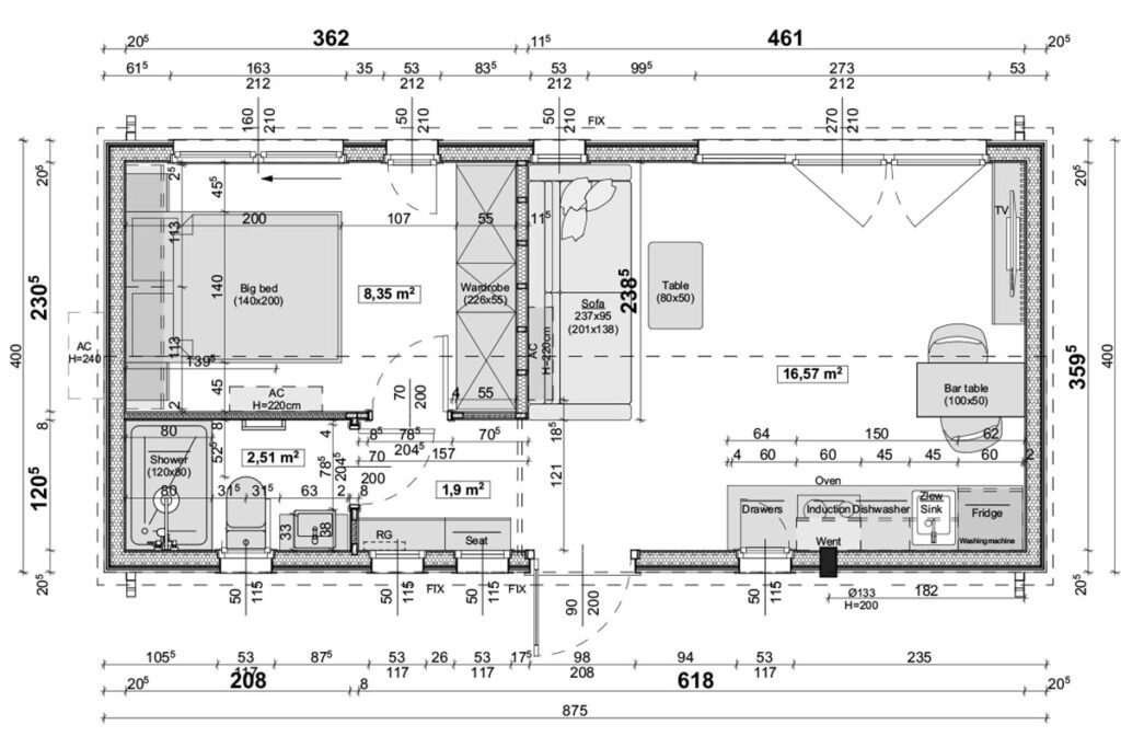
häufig ein Satteldach fordern, um eine Baugenehmigung zu erhalten. Und auch bei einer sogenannten „Nachbarschaftsbebauung“ muss ein Neubau an die in der Umgebung üblichen Bebauung angepasst werden. Mit einem 22°-Satteldach finden Sie also deutlich mehr Grundstücke für die Erteilung einer Baugenehmigung. - Größere Deckenhöhe. Wer besonderen Wert auf ein sehr gutes Raumgefühl legt, sollte einmal die Deckenhöhe von bis zu 2,8 Metern im Bungalow de
Luxe auf sich wirken lassen. - massive Stahlrahmenkonstruktion. Bei uns ist nicht nur der Grundrahmen aus Stahl sondern die gesamte Hauskonstruktion. Einschränkungen der Baustatik durch einen einem Erdbeben ähnlichen stundenlangen Transport auf der Straße wird dadurch von vornherein vermieden. Zahlreiche Bauaufsichtsämter fordern bei fertig angelieferten Häusern bereits eine massive Baustatik für die höchste Erdbebenzone 3.
- Drei statt nur zwei Achsen. Ortsveränderliche
Wohngebäude – wie mobile Häuser heute bürokratisch bezeichnet werden – sind wahre Schwergewichte und das Rangieren kann bereits bei leicht unebener Strecke zu einer echten Herkules-Aufgabe ausarten. Deshalb verfügen Oberklasse-Modelle stets über drei Achsen – zwei hinten und vorne ein Drehschemel -, um das Schadensrisiko bei der Verlegung minimieren zu können. - 2 Heizungssysteme zur Auswahl. Neben einem serienmäßigen elektronisch gesteuerten Pelletofen, der Ihnen das wohlige Kaminfeuer ins eigene Heim bringt (bis zu 85 % weniger CO2-Ausstoß ggü. Gasheizungen), bieten wir ergänzend auch ein Wärmepumpen-System an, das nicht nur heizen sondern auch kühlen kann. Und wer es besonders gemütlich haben möchte, greift auf die Infrarot-Fußbodenheizung zurück. Das macht ein Rolling Bungalow de Luxe zu einem der nachhaltigsten Minihäuser überhaupt auf dem Markt.
- Top-Leistungen zum bezahlbaren Preis.
Siehe dazu auch:
*) Fotos können aufpreispflichtige Sonderausstattungen enthalten. Technische Änderungen vorbehalten




